FECHA: 08/10/2018
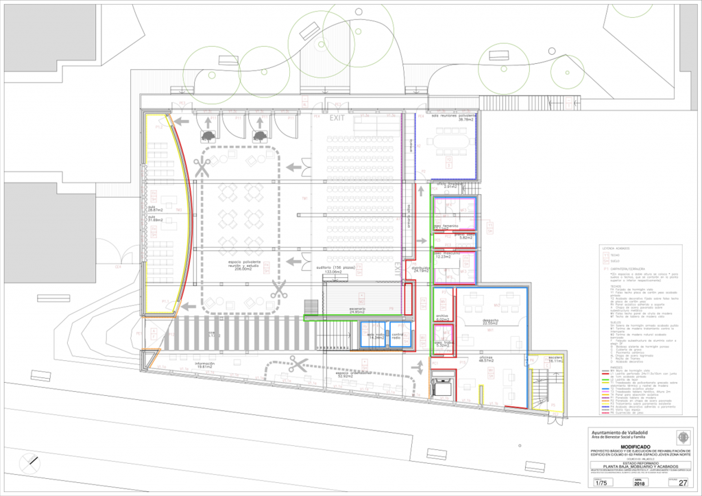
ADJUDICACIÓN PARA LA ELABORACIÓN DE LOS PLIEGOS TÉCNICOS NECESARIOS PARA LICITAR EL EQUIPAMIENTO DEL MOBILIARIO Y TEXTILES DEL NUEVO ESPACIO JOVEN DE LA CALLE OLMO 63. INCLUYE LA COORDINACIÓN Y SUPERVISIÓN DE TODO EL PROCESO DE MONTAJE E INSTALACIÓN.
Ayuntamiento de Valladolid
Servicio de Participación Ciudadana y Juventud.
OBRA EN PROCESO DE FINALIZACIÓN, PREVISTO PARA MEDIADOS DEL 2020



